Verkocht onder voorbehoud: Columbiahof 12, 1431 PA Aalsmeer
€ 489.500,- k.k.
| Type object | Appartement, benedenwoning |
| Woonoppervlakte | 81 m² |
| Aanvaarding | In overleg |
| Status | Verkocht onder voorbehoud |
Algemeen
Deze woning is reeds verkocht. De Open Huizen Dag is daarom geannuleerd.
Een fijn en licht driekamer hoekappartement op de begane grond, gelegen in de wijk "Stommeer"!
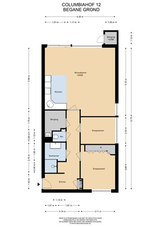
Het appartement is uitgerust met een fijne woonkamer (met toegang tot de tuin via de schuifpui), een open keuken, twee slaapkamers, badkamer, en een inpandige berging.
Via de hal heb je toegang tot alle vertrekken: de tw... Meer informatie
Een fijn en licht driekamer hoekappartement op de begane grond, gelegen in de wijk "Stommeer"!
Het appartement is uitgerust met een fijne woonkamer (met toegang tot de tuin via de schuifpui), een open keuken, twee slaapkamers, badkamer, en een inpandige berging.
Via de hal heb je toegang tot alle vertrekken: de tw... Meer informatie
-
Kenmerken
Alle kenmerken Type object Appartement, benedenwoning Bouwperiode 1994 Status Verkocht onder voorbehoud Aangeboden sinds Vrijdag 20 maart 2026 -
Locatie
Kenmerken
| Overdracht | |
|---|---|
| Referentienummer | 776 |
| Vraagprijs | € 489.500,- k.k. |
| Servicekosten | € 160,- |
| Status | Verkocht onder voorbehoud |
| Aanvaarding | In overleg |
| Aangeboden sinds | Vrijdag 20 maart 2026 |
| Laatste wijziging | Vrijdag 27 maart 2026 |
| Bouw | |
|---|---|
| Type object | Appartement, benedenwoning |
| Woonlaag | 1e woonlaag |
| Soort bouw | Bestaande bouw |
| Bouwperiode | 1994 |
| Dakbedekking | Bitumen |
| Type dak | Platdak |
| Isolatievormen | Dubbel glas |
| Oppervlaktes en inhoud | |
|---|---|
| Woonoppervlakte | 81 m² |
| Woonkameroppervlakte | 40,32 m² |
| Inhoud | 288 m³ |
| Indeling | |
|---|---|
| Aantal bouwlagen | 1 |
| Aantal kamers | 3 (waarvan 2 slaapkamers) |
| Aantal badkamers | 1 (en 1 apart toilet) |
| Tuin | |
|---|---|
| Type | Achtertuin |
| Oriëntering | Zuidoost |
| Staat | Goed onderhouden |
| Energieverbruik | |
|---|---|
| Energielabel | B |
| CV ketel | |
|---|---|
| CV ketel | Nefit Proline CW 3 |
| Warmtebron | Gas |
| Bouwjaar | 2009 |
| Eigendom | Eigendom |
| Uitrusting | |
|---|---|
| Warm water | CV-ketel |
| Verwarmingssysteem | Centrale verwarming |
| Badkamervoorzieningen | Douche, Wastafelmeubel |
| Tuin aanwezig | Ja |
| Vereniging van Eigenaren | |
|---|---|
| Ingeschreven bij de KvK | Ja |
| Jaarlijkse vergadering | Ja |
| Periodieke bijdrage | Ja |
| Reservefonds | Ja |
| Meer jaren onderhoudsplan | Ja |
| Onderhoudsverwachting | Ja |
| Opstal verzekering | Ja |
| Kadastrale gegevens | |
|---|---|
| Kadastrale aanduiding | Aalsmeer c 5337 |
| Omvang | Appartementsrecht of complex |
| Eigendomsituatie | Eigen grond |
| Indexnummer | A12 |
Beschrijving
Deze woning is reeds verkocht. De Open Huizen Dag is daarom geannuleerd.
Een fijn en licht driekamer hoekappartement op de begane grond, gelegen in de wijk "Stommeer"!
Het appartement is uitgerust met een fijne woonkamer (met toegang tot de tuin via de schuifpui), een open keuken, twee slaapkamers, badkamer, en een inpandige berging.
Via de hal heb je toegang tot alle vertrekken: de twee slaapkamers, separaat toilet, badkamer, inpandige berging en woonkamer met open keuken. De lichte woonkamer is voorzien van een open keuken. Het appartement heeft twee slaapkamers, waarvan één met vaste kast. Via de schuifpui kom je in de heerlijke achtertuin, gelegen op het zuidoosten. In het vroege voorjaar kan je hier al van het zonnetje genieten, tijdens de zomerse dagen zijn er zon- en schaduwplekken in de tuin. kortom de tuin is een fijne plek om te ontspannen.
In de inpandige berging vind je onder andere de wasmachineaansluiting en de cv-ketel (Nefit uit 2009).
Dit appartement bevindt zich vlakbij alle dagelijkse voorzieningen. Het gezellige dorpscentrum van Aalsmeer ligt op loopafstand en daar vind je onder andere supermarkten, Hema, Blokker, speciaalzaken en diverse horecagelegenheden. De mooie Westeinderplassen, "Het Surfeiland", het Hornmeerpark, zwembad, sportgelegenheden en de winkelstraat Ophelialaan bevinden zich ook op loopafstand. De woning is tevens goed bereikbaar via de diverse uitvalswegen en het openbaar vervoer. Met de auto zijn onder andere Amstelveen, het Amsterdamse Bos, Schiphol, Amsterdam, Hoofddorp, de A4, A5, A9 en de kust goed bereikbaar.
Bijzonderheden:
* Ruim driekamerappartement op de begane grond
* Energielabel B
* Kleinschalig appartementencomplex met rustige ligging
* Tuin gelegen op het zuidoosten en aan sierwater
* Meerdere opbergmogelijkheden
* Er is voldoende parkeergelegenheid en ook een oplaadpaal aanwezig in de straat
* Ligging in de wijk Stommeer, nabij de Westeinderplassen en het Surfeiland
* Gunstige ligging ten opzichte van winkels, uitvalswegen en openbaar vervoer
Wil je dit appartement bezichtigen? Neem contact met ons op via tel. 0297 - 322111 om een afspraak te maken. Wij laten deze woning graag aan je zien!
Een fijn en licht driekamer hoekappartement op de begane grond, gelegen in de wijk "Stommeer"!
Het appartement is uitgerust met een fijne woonkamer (met toegang tot de tuin via de schuifpui), een open keuken, twee slaapkamers, badkamer, en een inpandige berging.
Via de hal heb je toegang tot alle vertrekken: de twee slaapkamers, separaat toilet, badkamer, inpandige berging en woonkamer met open keuken. De lichte woonkamer is voorzien van een open keuken. Het appartement heeft twee slaapkamers, waarvan één met vaste kast. Via de schuifpui kom je in de heerlijke achtertuin, gelegen op het zuidoosten. In het vroege voorjaar kan je hier al van het zonnetje genieten, tijdens de zomerse dagen zijn er zon- en schaduwplekken in de tuin. kortom de tuin is een fijne plek om te ontspannen.
In de inpandige berging vind je onder andere de wasmachineaansluiting en de cv-ketel (Nefit uit 2009).
Dit appartement bevindt zich vlakbij alle dagelijkse voorzieningen. Het gezellige dorpscentrum van Aalsmeer ligt op loopafstand en daar vind je onder andere supermarkten, Hema, Blokker, speciaalzaken en diverse horecagelegenheden. De mooie Westeinderplassen, "Het Surfeiland", het Hornmeerpark, zwembad, sportgelegenheden en de winkelstraat Ophelialaan bevinden zich ook op loopafstand. De woning is tevens goed bereikbaar via de diverse uitvalswegen en het openbaar vervoer. Met de auto zijn onder andere Amstelveen, het Amsterdamse Bos, Schiphol, Amsterdam, Hoofddorp, de A4, A5, A9 en de kust goed bereikbaar.
Bijzonderheden:
* Ruim driekamerappartement op de begane grond
* Energielabel B
* Kleinschalig appartementencomplex met rustige ligging
* Tuin gelegen op het zuidoosten en aan sierwater
* Meerdere opbergmogelijkheden
* Er is voldoende parkeergelegenheid en ook een oplaadpaal aanwezig in de straat
* Ligging in de wijk Stommeer, nabij de Westeinderplassen en het Surfeiland
* Gunstige ligging ten opzichte van winkels, uitvalswegen en openbaar vervoer
Wil je dit appartement bezichtigen? Neem contact met ons op via tel. 0297 - 322111 om een afspraak te maken. Wij laten deze woning graag aan je zien!