Algemeen
Licht appartement gelegen op de eerste verdieping met vrij uitzicht over water en groen, gelegen in de gezellige wijk "De Rietlanden" in Kudelstaart.
Met één slaapkamer, een balkon op het zuidwesten en een energielabel A biedt dit appartement alles wat je nodig hebt om optimaal van het leven thuis te genieten.
Het appartement beschikt over een ruime hal met toegang tot alle vertrekken: sl... Meer informatie
Met één slaapkamer, een balkon op het zuidwesten en een energielabel A biedt dit appartement alles wat je nodig hebt om optimaal van het leven thuis te genieten.
Het appartement beschikt over een ruime hal met toegang tot alle vertrekken: sl... Meer informatie
-
Kenmerken
Alle kenmerken Type object Appartement, galerijflat Bouwperiode 2008 Status Onder bod Aangeboden sinds Vrijdag 17 april 2026 -
Locatie
Kenmerken
| Overdracht | |
|---|---|
| Referentienummer | 778 |
| Vraagprijs | € 399.500,- k.k. |
| Servicekosten | € 166,20 |
| Status | Onder bod |
| Aanvaarding | In overleg |
| Aangeboden sinds | Vrijdag 17 april 2026 |
| Laatste wijziging | Woensdag 29 april 2026 |
| Bouw | |
|---|---|
| Type object | Appartement, galerijflat |
| Woonlaag | 1e woonlaag |
| Soort bouw | Bestaande bouw |
| Bouwperiode | 2008 |
| Dakbedekking | Dakpannen |
| Type dak | Zadeldak |
| Isolatievormen | Dubbel glas, Volledig geïsoleerd |
| Oppervlaktes en inhoud | |
|---|---|
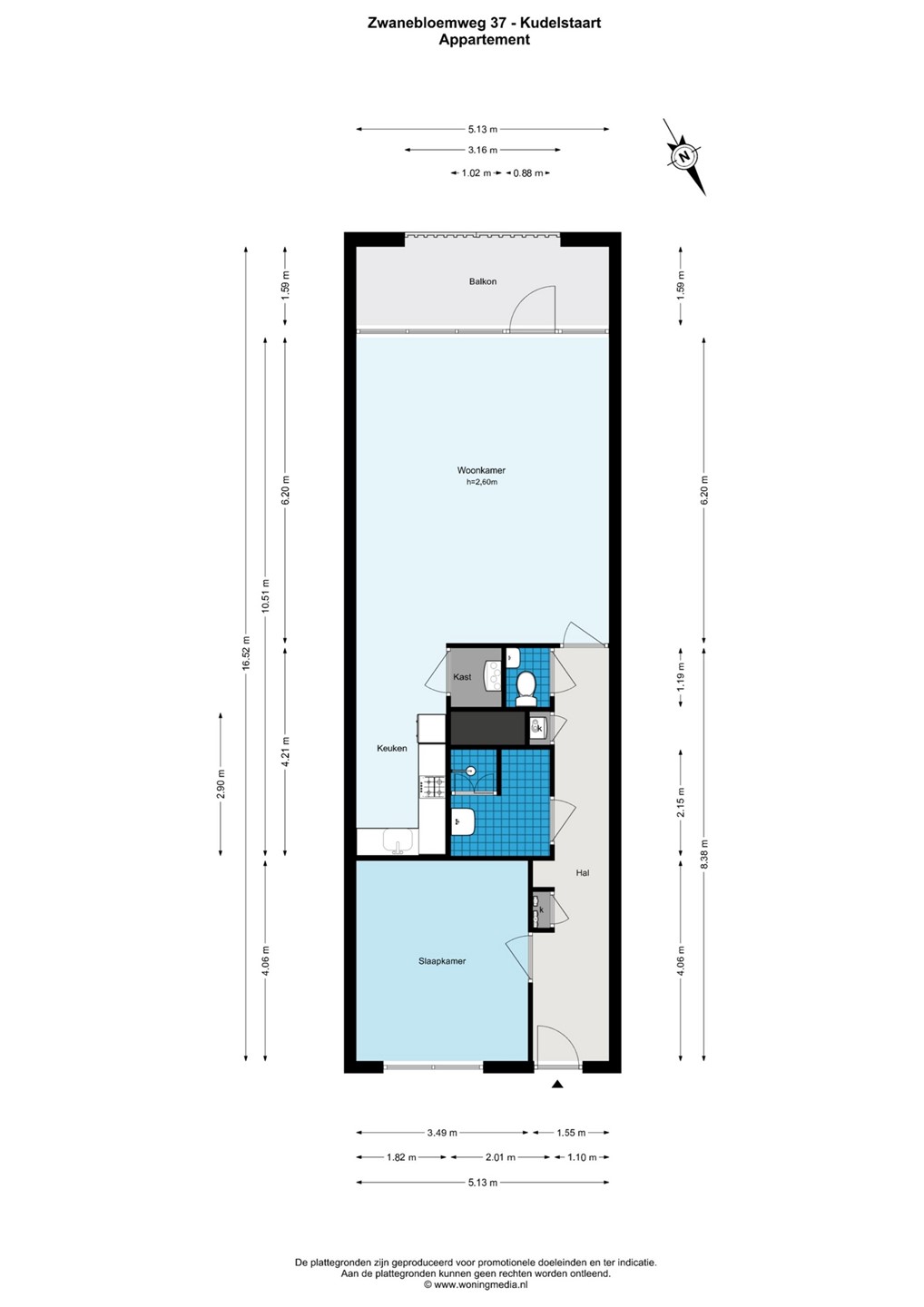
| Woonoppervlakte | 74 m² |
| Woonkameroppervlakte | 31,81 m² |
| Keukenoppervlakte | 5,28 m² |
| Inhoud | 269 m³ |
| Balkonoppervlakte | 8,16 m² |
| Indeling | |
|---|---|
| Aantal bouwlagen | 1 |
| Aantal kamers | 2 (waarvan 1 slaapkamer) |
| Aantal badkamers | 1 |
| Energieverbruik | |
|---|---|
| Energielabel | A |
| CV ketel | |
|---|---|
| Eigendom | Eigendom |
| Uitrusting | |
|---|---|
| Warm water | CV-ketel |
| Verwarmingssysteem | Centrale verwarming |
| Ventilatie methode | Mechanische ventilatie |
| Badkamervoorzieningen | Douche, Wastafelmeubel |
| Heeft een balkon | Ja |
| Heeft schuur/berging | Ja |
| Heeft ventilatie | Ja |
| Vereniging van Eigenaren | |
|---|---|
| Ingeschreven bij de KvK | Ja |
| Jaarlijkse vergadering | Ja |
| Periodieke bijdrage | Ja |
| Reservefonds | Ja |
| Meer jaren onderhoudsplan | Ja |
| Onderhoudsverwachting | Ja |
| Opstal verzekering | Ja |
| Kadastrale gegevens | |
|---|---|
| Kadastrale aanduiding | Aalsmeer D 6107 |
| Perceeloppervlakte | 362 m² |
| Omvang | Appartementsrecht of complex |
| Eigendomsituatie | Eigen grond |
| Indexnummer | A7 |
Beschrijving
Licht appartement gelegen op de eerste verdieping met vrij uitzicht over water en groen, gelegen in de gezellige wijk "De Rietlanden" in Kudelstaart.
Met één slaapkamer, een balkon op het zuidwesten en een energielabel A biedt dit appartement alles wat je nodig hebt om optimaal van het leven thuis te genieten.
Het appartement beschikt over een ruime hal met toegang tot alle vertrekken: slaapkamer, badkamer, separaat toilet en de woonkamer. De woonkamer grenst aan de halfopen keuken, die voorzien is van inbouwapparatuur. Ideaal is het ruime balkon op het zuidwesten met mooi uitzicht over het sierwater.
Het appartementencomplex ligt in een levendige buurt met diverse voorzieningen op loopafstand. Of je nu behoefte hebt aan winkels, restaurants of recreatiemogelijkheden, je vindt het allemaal binnen handbereik. Met de auto zijn onder andere Amstelveen, het Amsterdamse Bos, Schiphol, Amsterdam, Hoofddorp, de A4, A5, A9 en de kust goed bereikbaar.
Bijzonderheden:
- Leuk appartement met een woonoppervlakte van ca. 74 m²
- Bouwjaar 2008
- Energielabel: A
- Box op de begane grond
- Oplevering in overleg, kan snel.
Ben jij op zoek naar een comfortabel appartement? Wacht dan niet langer en kom dit leuke appartement snel bezichtigen!
Met één slaapkamer, een balkon op het zuidwesten en een energielabel A biedt dit appartement alles wat je nodig hebt om optimaal van het leven thuis te genieten.
Het appartement beschikt over een ruime hal met toegang tot alle vertrekken: slaapkamer, badkamer, separaat toilet en de woonkamer. De woonkamer grenst aan de halfopen keuken, die voorzien is van inbouwapparatuur. Ideaal is het ruime balkon op het zuidwesten met mooi uitzicht over het sierwater.
Het appartementencomplex ligt in een levendige buurt met diverse voorzieningen op loopafstand. Of je nu behoefte hebt aan winkels, restaurants of recreatiemogelijkheden, je vindt het allemaal binnen handbereik. Met de auto zijn onder andere Amstelveen, het Amsterdamse Bos, Schiphol, Amsterdam, Hoofddorp, de A4, A5, A9 en de kust goed bereikbaar.
Bijzonderheden:
- Leuk appartement met een woonoppervlakte van ca. 74 m²
- Bouwjaar 2008
- Energielabel: A
- Box op de begane grond
- Oplevering in overleg, kan snel.
Ben jij op zoek naar een comfortabel appartement? Wacht dan niet langer en kom dit leuke appartement snel bezichtigen!