Algemeen
**********************************************
ENGELISH TEXT: SEE BELOW
**********************************************
Ben jij op zoek naar een leuke instapklare eengezinswoning in Kudelstaart? Dan is de woning aan de Stuurboordstraat 11 perfect voor jou!
Gelegen in een kindvriendelijke woonwijk vind je deze ruime eengezinswoning. Met een woonoppervlak van 128 m² en 4 slaapkamers biedt... Meer informatie
ENGELISH TEXT: SEE BELOW
**********************************************
Ben jij op zoek naar een leuke instapklare eengezinswoning in Kudelstaart? Dan is de woning aan de Stuurboordstraat 11 perfect voor jou!
Gelegen in een kindvriendelijke woonwijk vind je deze ruime eengezinswoning. Met een woonoppervlak van 128 m² en 4 slaapkamers biedt... Meer informatie
-
Kenmerken
Alle kenmerken Type object Woonhuis, eengezinswoning, tussenwoning Bouwperiode 2009 Status Verkocht onder voorbehoud Aangeboden sinds Woensdag 24 september 2025 -
Locatie
Kenmerken
Overdracht | |
---|---|
Referentienummer | 726 |
Vraagprijs | € 575.000,- k.k. |
Status | Verkocht onder voorbehoud |
Aanvaarding | In overleg |
Aangeboden sinds | Woensdag 24 september 2025 |
Laatste wijziging | Woensdag 15 oktober 2025 |
Bouw | |
---|---|
Type object | Woonhuis, eengezinswoning, tussenwoning |
Soort bouw | Bestaande bouw |
Bouwperiode | 2009 |
Dakbedekking | Dakpannen |
Type dak | Dwarskap |
Isolatievormen | Volledig geïsoleerd |
Oppervlaktes en inhoud | |
---|---|
Perceeloppervlakte | 138 m² |
Woonoppervlakte | 128 m² |
Woonkameroppervlakte | 32,14 m² |
Keukenoppervlakte | 7,69 m² |
Inhoud | 474 m³ |
Oppervlakte externe bergruimte | 7 m² |
Indeling | |
---|---|
Aantal bouwlagen | 3 |
Aantal kamers | 5 (waarvan 4 slaapkamers) |
Aantal badkamers | 1 (en 1 apart toilet) |
Locatie | |
---|---|
Ligging | Aan rustige weg, Dichtbij openbaar vervoer, In woonwijk |
Tuin | |
---|---|
Type | Achtertuin |
Hoofdtuin | Ja |
Oriëntering | Zuidoost |
Staat | Prachtig aangelegd |
Energieverbruik | |
---|---|
Energielabel | A |
CV ketel | |
---|---|
CV ketel | HR Combi |
Warmtebron | Gas |
Bouwjaar | 2020 |
Combiketel | Ja |
Eigendom | Eigendom |
Uitrusting | |
---|---|
Warm water | CV-ketel |
Verwarmingssysteem | Centrale verwarming |
Ventilatie methode | Mechanische ventilatie |
Keukenvoorzieningen | Inbouwapparatuur |
Badkamervoorzieningen | Inloopdouche, Toilet, Wastafelmeubel |
Heeft kabel-tv | Ja |
Tuin aanwezig | Ja |
Heeft een garage | Ja |
Heeft schuur/berging | Ja |
Heeft zonwering | Ja |
Heeft zonnepanelen | Ja |
Heeft ventilatie | Ja |
Kadastrale gegevens | |
---|---|
Kadastrale aanduiding | Aalsmeer D 6677 |
Perceeloppervlakte | 138 m² |
Omvang | Geheel perceel |
Eigendomsituatie | Eigen grond |
Beschrijving
**********************************************
ENGELISH TEXT: SEE BELOW
**********************************************
Ben jij op zoek naar een leuke instapklare eengezinswoning in Kudelstaart? Dan is de woning aan de Stuurboordstraat 11 perfect voor jou!
Gelegen in een kindvriendelijke woonwijk vind je deze ruime eengezinswoning. Met een woonoppervlak van 128 m² en 4 slaapkamers biedt dit de perfecte plek voor jou en je gezin. De tuin is gelegen op het zuidoosten, wat ervoor zorgt dat je de hele dag van de zon kan genieten.
Voor al je boodschappen ben je zo in het winkelcentrum van Kudelstaart, met onder meer een supermarkt, bakker, slager, drogist en bloemist. Ook zijn er basisscholen, kinderopvangcentra en sportverenigingen in de buurt, evenals diverse horecagelegenheden zoals cafés en eetgelegenheden. Perfecte locatie voor een kop koffie, lunch, diner of gezellige borrel.
De bushalte bevindt zich op loopafstand met een busverbinding naar Amsterdam, Amstelveen, Hoofddorp en Haarlem.
Begane grond:
Via de voortuin met schuur betreed je de voordeur. Deze leidt je naar een ruime hal waar de meterkast, de fijne luie trap naar de eerste verdieping en het in 2020 vernieuwde toilet zich bevinden. De woonkamer is ruim en licht. In de trapkast is er ontzettend veel opbergruimte. Via de openslaande deuren kom je in de achtertuin, deze is heerlijk gelegen op het zuidoosten. Met een klein trapje is het sierwater te bereiken dat aan de achtertuin grenst.
De keuken bevindt zich aan de voorzijde van de woning en is uitgerust met een koelkast, vriezer, inbouwvaatwasser, 5 pits gaskookplaat, afzuigkap en combimagnetron.
Eerste verdieping:
Op deze verdieping zijn in totaal 3 ruime slaapkamers te vinden. De badkamer is gerenoveerd in 2020 en is uitgerust met een toilet, ruime douche en mooi wastafelmeubel. Deze badkamer geeft je het gevoel van een luxe spa.
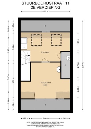
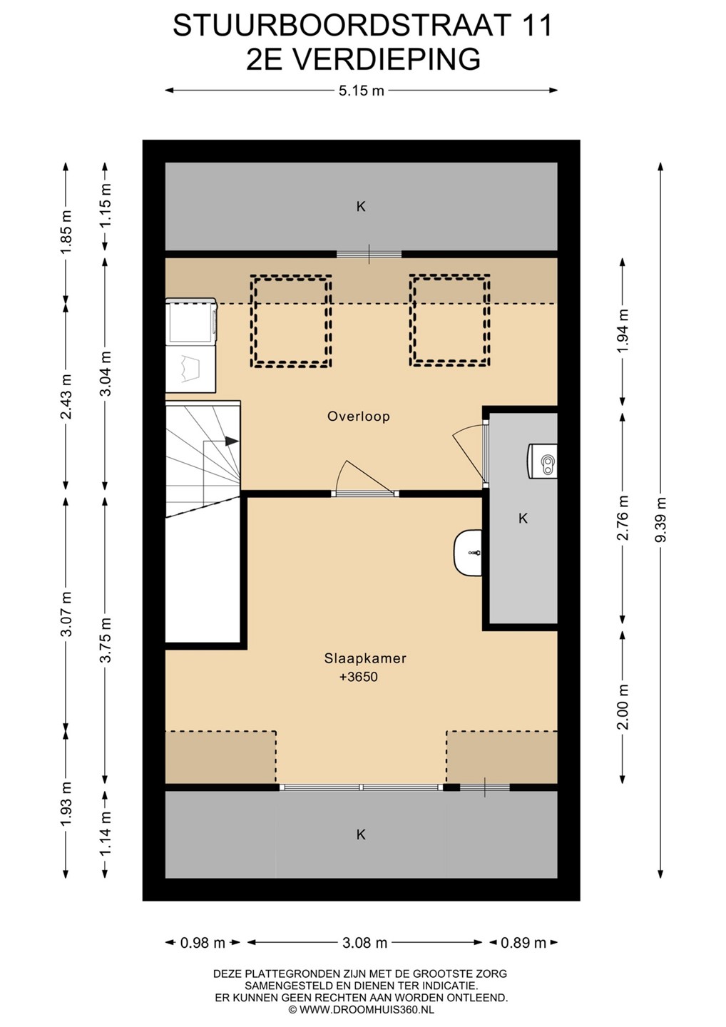
Tweede verdieping:
Via een vaste trap bereik je de zolder. Hier bevindt zich een nette voorzolder, ideaal voor opbergruimte, met daarnaast de opstelplaats voor de wasmachine en droger en een verrassend ruime vierde slaapkamer.
De woning beschikt maar liefst over 12 zonnepanelen en heeft energielabel A. Daardoor is de woning zeer energie zuinig. De zonnepanelen worden op dit moment nog gehuurd, maar dit huurcontract loopt in 2026 af waardoor de zonnepanelen voor een klein bedrag volledig eigendom kunnen worden.
Bijzonderheden:
- Bouwjaar 2009
- Parkeergelegenheid in de straat
- Perceeloppervlak van 138 m²
- Energielabel A
- Openbaar vervoer in de nabije omgeving
- Gelegen in gewilde kindvriendelijke woonwijk
- De badkamer is in 2020 vernieuwd
- Achtertuin gelegen op het zuidoosten
- 12 zonnepanelen (huurcontract loopt af in 2026)
- Woonoppervlak van 128 m²
- CV ketel Intergas uit 2020
- 4 slaapkamers
Oplevering in overleg begin 2026
Ben je benieuwd naar deze eengezinswoning? Neem dan contact met ons op voor meer informatie of een bezichtiging via tel. 0297-322111. Wij laten deze woning graag aan je zien!
**********************************************
Are you looking for a beautiful, move-in-ready family home in Kudelstaart? Then the house at Stuurboordstraat 11 is perfect for you!
Located in a child-friendly neighborhood, this spacious family home offers 128 m² of living space and 4 bedrooms — the ideal place for you and your family. The backyard is southeast-facing, allowing you to enjoy the sun all day long.
For all your daily shopping needs, the local shopping center in Kudelstaart is just around the corner, featuring a supermarket, bakery, butcher, drugstore, and florist. There are also primary schools, childcare centers, and sports clubs nearby, along with various cafés and restaurants. It’s the perfect spot for a coffee, lunch, dinner, or a nice drink with friends.
The bus stop is within walking distance, offering connections to Amsterdam, Amstelveen, Hoofddorp, and Haarlem.
Ground floor:
You enter the home through the front garden, which includes a storage shed. The front door leads into a spacious hallway with the meter cupboard, a comfortable staircase to the first floor, and a toilet renovated in 2020. The living room is bright and spacious, with ample storage space under the stairs. French doors lead to the southeast-facing backyard. A small set of steps takes you to a charming ornamental water feature directly behind the garden.
The kitchen is located at the front of the house and comes fully equipped with a refrigerator, freezer, built-in dishwasher, 5-burner gas stove, extractor hood, and combination microwave oven.
First floor:
On this floor, you'll find three spacious bedrooms. The bathroom, renovated in 2020, features a toilet, large walk-in shower, and a stylish vanity unit. The luxurious spa-like feel of the bathroom adds a touch of comfort to daily life.
Second floor:
A fixed staircase leads to the attic floor. This level includes a neat landing, ideal for additional storage, with space for both a washing machine and dryer. There is also a surprisingly spacious fourth bedroom.
The home is equipped with 12 solar panels and has an Energy Label A, making it highly energy-efficient. The solar panels are currently leased, but the lease contract ends in 2026, after which they can be purchased for a small fee and become your property.
Key features:
* Built in 2009
* On-street parking
* Plot size: 138 m²
* Energy label A
* Public transport nearby
* Located in a sought-after, child-friendly neighborhood
* Bathroom renovated in 2020
* Southeast-facing backyard
* 12 solar panels (lease ends in 2026)
* Living area: 128 m²
* Intergas central heating system from 2020
* 4 bedrooms
Available by mutual agreement – expected early 2026
ENGELISH TEXT: SEE BELOW
**********************************************
Ben jij op zoek naar een leuke instapklare eengezinswoning in Kudelstaart? Dan is de woning aan de Stuurboordstraat 11 perfect voor jou!
Gelegen in een kindvriendelijke woonwijk vind je deze ruime eengezinswoning. Met een woonoppervlak van 128 m² en 4 slaapkamers biedt dit de perfecte plek voor jou en je gezin. De tuin is gelegen op het zuidoosten, wat ervoor zorgt dat je de hele dag van de zon kan genieten.
Voor al je boodschappen ben je zo in het winkelcentrum van Kudelstaart, met onder meer een supermarkt, bakker, slager, drogist en bloemist. Ook zijn er basisscholen, kinderopvangcentra en sportverenigingen in de buurt, evenals diverse horecagelegenheden zoals cafés en eetgelegenheden. Perfecte locatie voor een kop koffie, lunch, diner of gezellige borrel.
De bushalte bevindt zich op loopafstand met een busverbinding naar Amsterdam, Amstelveen, Hoofddorp en Haarlem.
Begane grond:
Via de voortuin met schuur betreed je de voordeur. Deze leidt je naar een ruime hal waar de meterkast, de fijne luie trap naar de eerste verdieping en het in 2020 vernieuwde toilet zich bevinden. De woonkamer is ruim en licht. In de trapkast is er ontzettend veel opbergruimte. Via de openslaande deuren kom je in de achtertuin, deze is heerlijk gelegen op het zuidoosten. Met een klein trapje is het sierwater te bereiken dat aan de achtertuin grenst.
De keuken bevindt zich aan de voorzijde van de woning en is uitgerust met een koelkast, vriezer, inbouwvaatwasser, 5 pits gaskookplaat, afzuigkap en combimagnetron.
Eerste verdieping:
Op deze verdieping zijn in totaal 3 ruime slaapkamers te vinden. De badkamer is gerenoveerd in 2020 en is uitgerust met een toilet, ruime douche en mooi wastafelmeubel. Deze badkamer geeft je het gevoel van een luxe spa.
Tweede verdieping:
Via een vaste trap bereik je de zolder. Hier bevindt zich een nette voorzolder, ideaal voor opbergruimte, met daarnaast de opstelplaats voor de wasmachine en droger en een verrassend ruime vierde slaapkamer.
De woning beschikt maar liefst over 12 zonnepanelen en heeft energielabel A. Daardoor is de woning zeer energie zuinig. De zonnepanelen worden op dit moment nog gehuurd, maar dit huurcontract loopt in 2026 af waardoor de zonnepanelen voor een klein bedrag volledig eigendom kunnen worden.
Bijzonderheden:
- Bouwjaar 2009
- Parkeergelegenheid in de straat
- Perceeloppervlak van 138 m²
- Energielabel A
- Openbaar vervoer in de nabije omgeving
- Gelegen in gewilde kindvriendelijke woonwijk
- De badkamer is in 2020 vernieuwd
- Achtertuin gelegen op het zuidoosten
- 12 zonnepanelen (huurcontract loopt af in 2026)
- Woonoppervlak van 128 m²
- CV ketel Intergas uit 2020
- 4 slaapkamers
Oplevering in overleg begin 2026
Ben je benieuwd naar deze eengezinswoning? Neem dan contact met ons op voor meer informatie of een bezichtiging via tel. 0297-322111. Wij laten deze woning graag aan je zien!
**********************************************
Are you looking for a beautiful, move-in-ready family home in Kudelstaart? Then the house at Stuurboordstraat 11 is perfect for you!
Located in a child-friendly neighborhood, this spacious family home offers 128 m² of living space and 4 bedrooms — the ideal place for you and your family. The backyard is southeast-facing, allowing you to enjoy the sun all day long.
For all your daily shopping needs, the local shopping center in Kudelstaart is just around the corner, featuring a supermarket, bakery, butcher, drugstore, and florist. There are also primary schools, childcare centers, and sports clubs nearby, along with various cafés and restaurants. It’s the perfect spot for a coffee, lunch, dinner, or a nice drink with friends.
The bus stop is within walking distance, offering connections to Amsterdam, Amstelveen, Hoofddorp, and Haarlem.
Ground floor:
You enter the home through the front garden, which includes a storage shed. The front door leads into a spacious hallway with the meter cupboard, a comfortable staircase to the first floor, and a toilet renovated in 2020. The living room is bright and spacious, with ample storage space under the stairs. French doors lead to the southeast-facing backyard. A small set of steps takes you to a charming ornamental water feature directly behind the garden.
The kitchen is located at the front of the house and comes fully equipped with a refrigerator, freezer, built-in dishwasher, 5-burner gas stove, extractor hood, and combination microwave oven.
First floor:
On this floor, you'll find three spacious bedrooms. The bathroom, renovated in 2020, features a toilet, large walk-in shower, and a stylish vanity unit. The luxurious spa-like feel of the bathroom adds a touch of comfort to daily life.
Second floor:
A fixed staircase leads to the attic floor. This level includes a neat landing, ideal for additional storage, with space for both a washing machine and dryer. There is also a surprisingly spacious fourth bedroom.
The home is equipped with 12 solar panels and has an Energy Label A, making it highly energy-efficient. The solar panels are currently leased, but the lease contract ends in 2026, after which they can be purchased for a small fee and become your property.
Key features:
* Built in 2009
* On-street parking
* Plot size: 138 m²
* Energy label A
* Public transport nearby
* Located in a sought-after, child-friendly neighborhood
* Bathroom renovated in 2020
* Southeast-facing backyard
* 12 solar panels (lease ends in 2026)
* Living area: 128 m²
* Intergas central heating system from 2020
* 4 bedrooms
Available by mutual agreement – expected early 2026