Algemeen
Licht hoekappartement met balkon in het centrum van Aalsmeer
Altijd al willen wonen in het bruisende centrum van Aalsmeer? Dan is dit lichte en ruime hoek appartement precies wat je zoekt. Gelegen op een fijne locatie midden in het dorp, is dit appartement ideaal voor starters die comfortabel en centraal willen wonen.
Begane grond:
Entree met brievenbussentableau en trapopgang naar de ve... Meer informatie
Altijd al willen wonen in het bruisende centrum van Aalsmeer? Dan is dit lichte en ruime hoek appartement precies wat je zoekt. Gelegen op een fijne locatie midden in het dorp, is dit appartement ideaal voor starters die comfortabel en centraal willen wonen.
Begane grond:
Entree met brievenbussentableau en trapopgang naar de ve... Meer informatie
-
Kenmerken
Alle kenmerken Type object Appartement, galerijflat Bouwperiode 1987 Status Nieuw in verkoop Aangeboden sinds Maandag 12 januari 2026 -
Locatie
Kenmerken
| Overdracht | |
|---|---|
| Referentienummer | 759 |
| Vraagprijs | € 399.500,- k.k. |
| Status | Nieuw in verkoop |
| Aanvaarding | Direct |
| Aangeboden sinds | Maandag 12 januari 2026 |
| Bouw | |
|---|---|
| Type object | Appartement, galerijflat |
| Woonlaag | 3e woonlaag |
| Soort bouw | Bestaande bouw |
| Bouwperiode | 1987 |
| Isolatievormen | Dakisolatie, Dubbel glas, Grotendeels dubbel glas |
| Oppervlaktes en inhoud | |
|---|---|
| Woonoppervlakte | 71 m² |
| Woonkameroppervlakte | 38,93 m² |
| Inhoud | 226 m³ |
| Oppervlakte gebouwgebonden buitenruimte | 11,1 m² |
| Balkonoppervlakte | 11,1 m² |
| Indeling | |
|---|---|
| Aantal bouwlagen | 1 |
| Aantal kamers | 2 (waarvan 1 slaapkamer) |
| Aantal badkamers | 1 (en 1 apart toilet) |
| Locatie | |
|---|---|
| Ligging | Dichtbij openbaar vervoer, In centrum, Nabij school |
| Energieverbruik | |
|---|---|
| Energielabel | C |
| CV ketel | |
|---|---|
| CV ketel | HR Combiketel |
| Warmtebron | Gas |
| Bouwjaar | 2020 |
| Combiketel | Ja |
| Eigendom | Eigendom |
| Uitrusting | |
|---|---|
| Warm water | CV-ketel |
| Verwarmingssysteem | Centrale verwarming |
| Badkamervoorzieningen | Douche, Wastafelmeubel |
| Heeft een balkon | Ja |
| Vereniging van Eigenaren | |
|---|---|
| Ingeschreven bij de KvK | Ja |
| Jaarlijkse vergadering | Ja |
| Periodieke bijdrage | Ja |
| Reservefonds | Ja |
| Meer jaren onderhoudsplan | Ja |
| Onderhoudsverwachting | Ja |
| Opstal verzekering | Ja |
| Kadastrale gegevens | |
|---|---|
| Kadastrale aanduiding | Aalsmeer G 5086 |
| Omvang | Appartementsrecht of complex |
| Eigendomsituatie | Eigen grond |
Beschrijving
Licht hoekappartement met balkon in het centrum van Aalsmeer
Altijd al willen wonen in het bruisende centrum van Aalsmeer? Dan is dit lichte en ruime hoek appartement precies wat je zoekt. Gelegen op een fijne locatie midden in het dorp, is dit appartement ideaal voor starters die comfortabel en centraal willen wonen.
Begane grond:
Entree met brievenbussentableau en trapopgang naar de verdiepingen.
Tweede verdieping:
Het appartement bevindt zich op de tweede én tevens bovenste verdieping van het kleinschalige complex, wat zorgt voor extra rust en privacy.
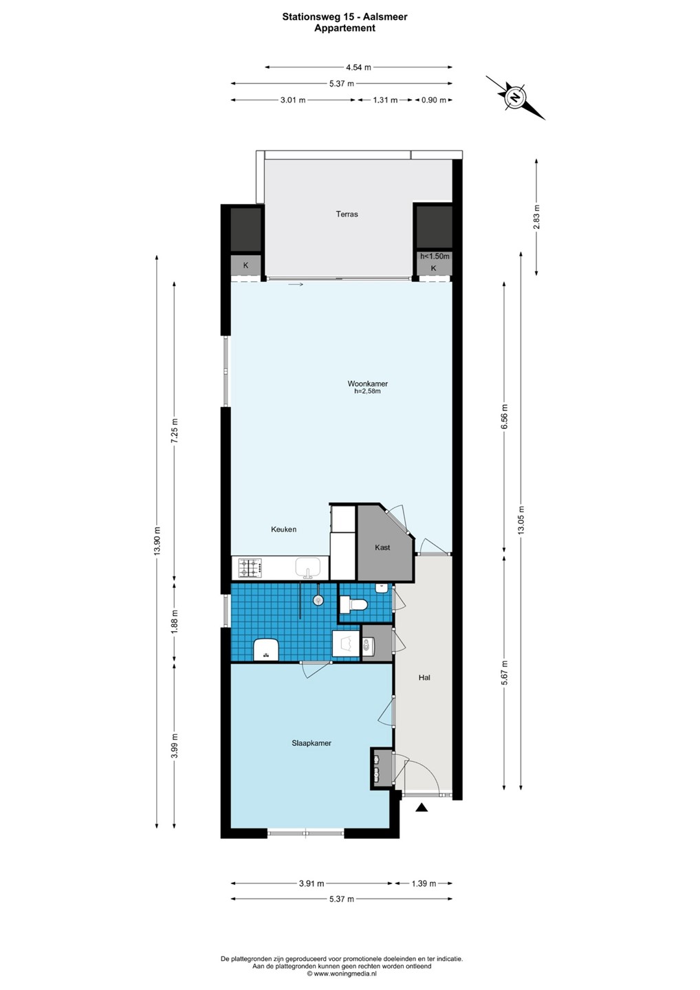
Via de ruime entree bereik je de slaapkamer met aangrenzende badkamer. De badkamer is voorzien van een douchecabine en een wastafelmeubel. Dankzij het raam geniet je hier van prettig daglicht en natuurlijke ventilatie. Het toilet is separaat en eveneens bereikbaar vanuit de hal.
Aan het einde van de gang kom je in de lichte woonkamer met open keuken. De woonkamer heeft een prettige lichtinval dankzij de schuifpui naar het balkon én een extra zijraam. Via de schuifpui bereik je het ruime balkon van maar liefst 11 m², een heerlijke plek om buiten te zitten.
De open keuken is uitgerust met diverse inbouwapparatuur en een inductiekookplaat, en sluit mooi aan op de leefruimte.
Ideaal gelegen:
Dit appartement ligt midden in het gezellige centrum van Aalsmeer. Winkels, restaurants en openbaar vervoer bevinden zich op loopafstand. Hier woon je rustig, maar met alle levendigheid van het dorp letterlijk om de hoek.
Bijzonderheden
- Woonoppervlakte ca. 71m²
- Balkon van ca. 11m²
- Gelegen op de bovenste verdieping
- Gezamenlijke berging
- CV-installatie vernieuwd in 2020
- Keuken met inbouwapparatuur (2015)
- Energielabel C
- Servicekosten VvE: ca. € 113,- per maand
- Oplevering mogelijk op korte termijn, voorkeur vóór 1 april 2026
Ben je enthousiast geworden over dit fijne appartement in het centrum van Aalsmeer? Neem dan snel contact op voor een bezichtiging via 0297-322111 en laat je verrassen door de ruimte en het licht!
Altijd al willen wonen in het bruisende centrum van Aalsmeer? Dan is dit lichte en ruime hoek appartement precies wat je zoekt. Gelegen op een fijne locatie midden in het dorp, is dit appartement ideaal voor starters die comfortabel en centraal willen wonen.
Begane grond:
Entree met brievenbussentableau en trapopgang naar de verdiepingen.
Tweede verdieping:
Het appartement bevindt zich op de tweede én tevens bovenste verdieping van het kleinschalige complex, wat zorgt voor extra rust en privacy.
Via de ruime entree bereik je de slaapkamer met aangrenzende badkamer. De badkamer is voorzien van een douchecabine en een wastafelmeubel. Dankzij het raam geniet je hier van prettig daglicht en natuurlijke ventilatie. Het toilet is separaat en eveneens bereikbaar vanuit de hal.
Aan het einde van de gang kom je in de lichte woonkamer met open keuken. De woonkamer heeft een prettige lichtinval dankzij de schuifpui naar het balkon én een extra zijraam. Via de schuifpui bereik je het ruime balkon van maar liefst 11 m², een heerlijke plek om buiten te zitten.
De open keuken is uitgerust met diverse inbouwapparatuur en een inductiekookplaat, en sluit mooi aan op de leefruimte.
Ideaal gelegen:
Dit appartement ligt midden in het gezellige centrum van Aalsmeer. Winkels, restaurants en openbaar vervoer bevinden zich op loopafstand. Hier woon je rustig, maar met alle levendigheid van het dorp letterlijk om de hoek.
Bijzonderheden
- Woonoppervlakte ca. 71m²
- Balkon van ca. 11m²
- Gelegen op de bovenste verdieping
- Gezamenlijke berging
- CV-installatie vernieuwd in 2020
- Keuken met inbouwapparatuur (2015)
- Energielabel C
- Servicekosten VvE: ca. € 113,- per maand
- Oplevering mogelijk op korte termijn, voorkeur vóór 1 april 2026
Ben je enthousiast geworden over dit fijne appartement in het centrum van Aalsmeer? Neem dan snel contact op voor een bezichtiging via 0297-322111 en laat je verrassen door de ruimte en het licht!