Algemeen
Sfeervol tweekamerappartement met hoog plafond en veel licht, gelegen op een centrale locatie in Aalsmeer
Aan de geliefde Ophelialaan 68B bevindt zich dit charmante tweekamerappartement. De woning valt direct op door het hoge plafond, de prettige indeling en de fijne lichtinval dankzij de vele ramen. Een comfortabele en sfeervolle woning, ideaal voor starters, alleenstaanden of stellen die o... Meer informatie
Aan de geliefde Ophelialaan 68B bevindt zich dit charmante tweekamerappartement. De woning valt direct op door het hoge plafond, de prettige indeling en de fijne lichtinval dankzij de vele ramen. Een comfortabele en sfeervolle woning, ideaal voor starters, alleenstaanden of stellen die o... Meer informatie
-
Kenmerken
Alle kenmerken Type object Appartement, portiekflat Bouwperiode 1950 Aangeboden sinds Dinsdag 27 januari 2026 -
Locatie
Kenmerken
| Overdracht | |
|---|---|
| Referentienummer | 762 |
| Vraagprijs | € 315.000,- k.k. |
| Servicekosten | € 374,74 |
| Aanvaarding | In overleg |
| Aangeboden sinds | Dinsdag 27 januari 2026 |
| Laatste wijziging | Maandag 2 maart 2026 |
| Bouw | |
|---|---|
| Type object | Appartement, portiekflat |
| Woonlaag | 1e woonlaag |
| Soort bouw | Bestaande bouw |
| Bouwperiode | 1950 |
| Dakbedekking | Dakpannen |
| Type dak | Dwarskap |
| Isolatievormen | Gedeeltelijk dubbel glas |
| Oppervlaktes en inhoud | |
|---|---|
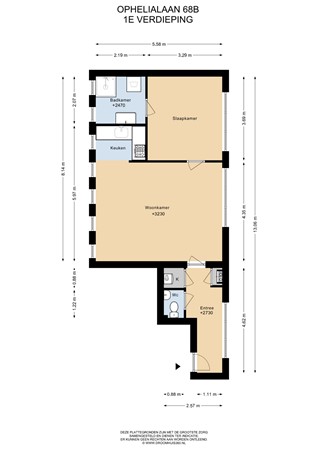
| Woonoppervlakte | 54 m² |
| Woonkameroppervlakte | 24,27 m² |
| Inhoud | 220 m³ |
| Indeling | |
|---|---|
| Aantal bouwlagen | 1 |
| Aantal kamers | 2 (waarvan 1 slaapkamer) |
| Aantal badkamers | 1 (en 1 apart toilet) |
| Energieverbruik | |
|---|---|
| Energielabel | F |
| CV ketel | |
|---|---|
| CV ketel | HR Combi |
| Warmtebron | Gas |
| Bouwjaar | 2011 |
| Eigendom | Eigendom |
| Uitrusting | |
|---|---|
| Warm water | CV-ketel |
| Verwarmingssysteem | Centrale verwarming |
| Badkamervoorzieningen | Douche, Wastafelmeubel |
| Vereniging van Eigenaren | |
|---|---|
| Ingeschreven bij de KvK | Ja |
| Jaarlijkse vergadering | Ja |
| Periodieke bijdrage | Ja |
| Reservefonds | Ja |
| Meer jaren onderhoudsplan | Ja |
| Onderhoudsverwachting | Ja |
| Opstal verzekering | Ja |
| Kadastrale gegevens | |
|---|---|
| Kadastrale aanduiding | Aalsmeer C 5361 |
| Omvang | Appartementsrecht of complex |
| Eigendomsituatie | Eigen grond |
| Indexnummer | A6 |
Beschrijving
Sfeervol tweekamerappartement met hoog plafond en veel licht, gelegen op een centrale locatie in Aalsmeer
Aan de geliefde Ophelialaan 68B bevindt zich dit charmante tweekamerappartement. De woning valt direct op door het hoge plafond, de prettige indeling en de fijne lichtinval dankzij de vele ramen. Een comfortabele en sfeervolle woning, ideaal voor starters, alleenstaanden of stellen die op zoek zijn naar een centraal gelegen appartement met karakter.
Locatie
Het appartement ligt aan de Ophelialaan, een levendige en populaire winkelstraat in Aalsmeer. Alle dagelijkse voorzieningen bevinden zich letterlijk om de hoek: supermarkten, speciaalzaken, horeca en openbaar vervoer zijn op loopafstand bereikbaar. Ook het dorpscentrum van Aalsmeer, scholen en sportvoorzieningen liggen nabij. Daarnaast zijn de Westeinderplassen en diverse uitvalswegen richting Amsterdam, Amstelveen en Schiphol snel en eenvoudig te bereiken, wat deze locatie zeer aantrekkelijk maakt.
Indeling
Via de gezamenlijke entree bereik je de woning. Bij binnenkomst kom je in de hal, waar zich het toilet, de meterkast en de cv-kast bevinden.
De ruime woonkamer vormt het hart van het appartement en wordt gekenmerkt door het hoge plafond en de vele ramen, wat zorgt voor een open en lichte sfeer. Er is voldoende ruimte voor zowel een comfortabele zithoek als een eethoek.
De halfopen keuken grenst aan de woonkamer en is praktisch en functioneel ingericht. De keuken is voorzien van een 4-pits gasfornuis, een koelkast met vriesvak en een combi-oven, en biedt voldoende werk- en opbergruimte.
Aan de achterzijde van het appartement bevindt zich de ruime slaapkamer, welke is voorzien van handige opbergmogelijkheden. Aangrenzend ligt de badkamer, die is uitgerust met een douchecabine en een wastafelmeubel.
Bijzonderheden
*Woonoppervlakte ca. 54 m²
*Servicekosten: ca. € 374,74 per maand
*Energielabel F
*Centrale en levendige locatie
*Licht appartement met hoog plafond
*Oplevering in overleg, kan snel
Aan de geliefde Ophelialaan 68B bevindt zich dit charmante tweekamerappartement. De woning valt direct op door het hoge plafond, de prettige indeling en de fijne lichtinval dankzij de vele ramen. Een comfortabele en sfeervolle woning, ideaal voor starters, alleenstaanden of stellen die op zoek zijn naar een centraal gelegen appartement met karakter.
Locatie
Het appartement ligt aan de Ophelialaan, een levendige en populaire winkelstraat in Aalsmeer. Alle dagelijkse voorzieningen bevinden zich letterlijk om de hoek: supermarkten, speciaalzaken, horeca en openbaar vervoer zijn op loopafstand bereikbaar. Ook het dorpscentrum van Aalsmeer, scholen en sportvoorzieningen liggen nabij. Daarnaast zijn de Westeinderplassen en diverse uitvalswegen richting Amsterdam, Amstelveen en Schiphol snel en eenvoudig te bereiken, wat deze locatie zeer aantrekkelijk maakt.
Indeling
Via de gezamenlijke entree bereik je de woning. Bij binnenkomst kom je in de hal, waar zich het toilet, de meterkast en de cv-kast bevinden.
De ruime woonkamer vormt het hart van het appartement en wordt gekenmerkt door het hoge plafond en de vele ramen, wat zorgt voor een open en lichte sfeer. Er is voldoende ruimte voor zowel een comfortabele zithoek als een eethoek.
De halfopen keuken grenst aan de woonkamer en is praktisch en functioneel ingericht. De keuken is voorzien van een 4-pits gasfornuis, een koelkast met vriesvak en een combi-oven, en biedt voldoende werk- en opbergruimte.
Aan de achterzijde van het appartement bevindt zich de ruime slaapkamer, welke is voorzien van handige opbergmogelijkheden. Aangrenzend ligt de badkamer, die is uitgerust met een douchecabine en een wastafelmeubel.
Bijzonderheden
*Woonoppervlakte ca. 54 m²
*Servicekosten: ca. € 374,74 per maand
*Energielabel F
*Centrale en levendige locatie
*Licht appartement met hoog plafond
*Oplevering in overleg, kan snel