Beschrijving

******************************
FOR ENGLISH TEXT: SEE BELOW
******************************

Ben je op zoek naar een eengezinswoning in een rustige, kindvriendelijke en groene wijk? Dan is deze goed onderhouden tussenwoning aan de Giekstraat 6 in Kudelstaart precies wat je zoekt!

Deze woning ligt in een autovrije straat, waar kinderen veilig buiten kunnen spelen en de sfeer aangenaam en gemoedelijk is. Met maar liefst vijf slaapkamers en een lichte woonkamer is dit de perfecte plek voor een (groot) gezin of voor wie extra ruimte zoekt voor bijvoorbeeld een thuiskantoor.

Deze verrassend ruime woning is opgeleverd in 2004 en voorzien van moderne gemakken. De grote ramen (voorzien van HR++ glas en kunststof kozijnen) zorgen voor een overvloed aan natuurlijk licht. Verder kan je genieten van de comfortabele vloerverwarming en is er een moderne WTW-installatie (warmteterugwinning) uit 2022 geïnstalleerd, wat zorgt voor een aangenaam binnenklimaat en een lager energieverbruik.

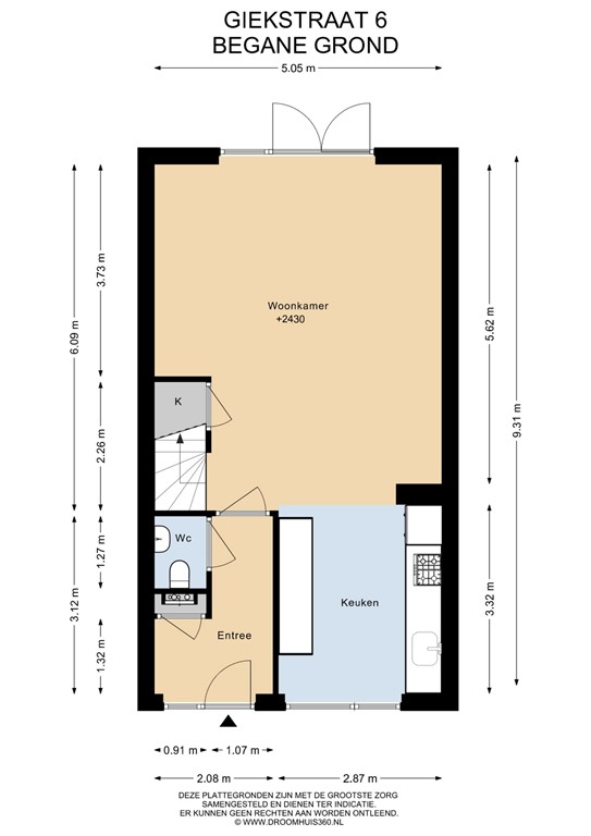
Begane grond
Via de voortuin betreed je de voordeur die je leidt naar de hal. Hier bevinden zich het toilet en de meterkast. De woonkamer is ruim en de keuken is gelegen aan de voorzijde van de woning. Deze is uitgerust met een koelkast, vriezer, inbouwvaatwasser, 4-pits gaskookplaat, afzuigkap en een combimagnetron. Via de openslaande deuren aan de achterzijde van de woning kom je in de achtertuin, die gelegen is op het noordwesten.

Eerste verdieping
Op de eerste verdieping bevinden zich drie slaapkamers, die voorzien zijn van rolluiken. Deze kamers kunnen ook dienstdoen als werkkamer. Daarnaast vind je op deze verdieping de badkamer met een toilet, douche, ligbad en wastafel.

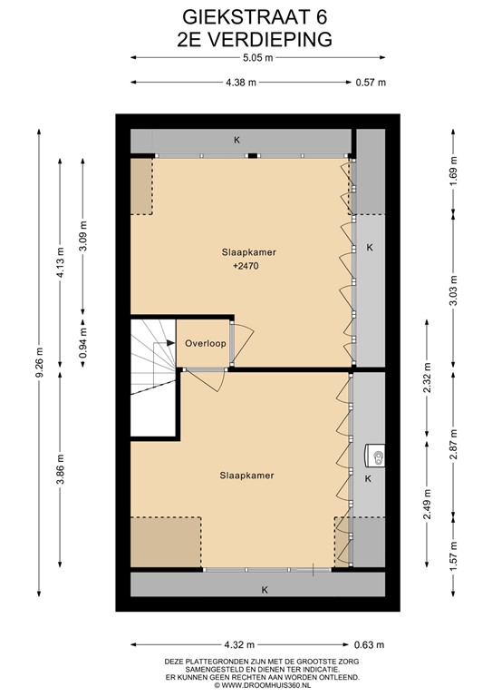
Tweede verdieping
De tweede verdieping is in 2022 volledig verbouwd en beschikt over twee mooie en ruime slaapkamers. Beide kamers hebben elk een grote dakkapel met rolluiken en horren. Een mooie, professionele kastenwand biedt veel opbergruimte en een strakke afwerking.

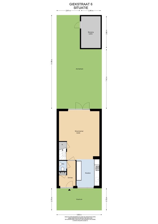
Achtertuin
De achtertuin is gelegen op het noordwesten en biedt een perfecte mix van zon en schaduw gedurende de dag. De tuin is goed verzorgd en onderhoudsvriendelijk, met voldoende ruimte voor gezellige etentjes, spelende kinderen of een moment van ontspanning na een lange dag.

Leven in Kudelstaart: rust en gemak gecombineerd
Deze woning is ideaal gelegen in een buurt die bekend staat om haar ruime opzet, overvloed aan groen en goede parkeergelegenheid. In de directe omgeving vind je diverse speeltuinen, basisscholen, kinderopvang en sportverenigingen.
Kudelstaart is een levendig dorp aan de prachtige Westeinderplassen, waar je kunt genieten van watersport en recreatie. Het winkelcentrum is dichtbij en voorziet in alle dagelijkse behoeften met een supermarkt, bakker, slager en diverse horecagelegenheden.

Bereikbaarheid
Dankzij de goede aansluiting op het openbaar vervoer ben je binnen korte tijd in het centrum van Aalsmeer of zelfs Amsterdam. Met de auto zijn onder andere Amstelveen, het Amsterdamse Bos, Schiphol, Amsterdam, Hoofddorp, de A4, A5, A9 en de kust goed bereikbaar.
Zo combineer je de rust van het dorp met de voordelen van de stad binnen handbereik.

Kenmerken van de woning:
 * Bouwjaar 2003/2004 (oplevering in 2004)
 * Perceeloppervlak van 128 m²
 * Energielabel A
 * Woonoppervlak van 132 m²
 * Cv-ketel Intergas uit 2015
 * 5 slaapkamers
 * Volledig verbouwde tweede verdieping uit 2022
 * WTW-installatie uit 2022
 * Veel parkeergelegenheid in de straat
 * Achtertuin op het noordwesten
 * Rolluiken op eerste en tweede verdieping
 * Oplevering in overleg

Ben je benieuwd naar deze goed onderhouden eengezinswoning? Neem dan contact met ons op voor meer informatie of een bezichtiging via tel. 0297-322111. Wij laten deze woning graag aan je zien!


******************************


Are you looking for a family home in a quiet, child-friendly, and green neighborhood? Then this well-maintained terraced house at Giekstraat 6 in Kudelstaart might be exactly what you're looking for!

Located on a car-free street, this home offers a safe environment for children to play and a pleasant, friendly atmosphere. With no fewer than five bedrooms and a bright living room, it’s the perfect home for a (large) family or for anyone needing extra space, such as a home office.

This surprisingly spacious home was completed in 2004 and features modern conveniences. The large windows (fitted with HR++ glass and PVC window frames) allow for plenty of natural light. You’ll also enjoy comfortable underfloor heating and a modern heat recovery ventilation system (WTW) installed in 2022, providing a pleasant indoor climate and lower energy consumption.

Ground Floor

Through the front garden, you enter the hallway via the front door. Here you’ll find the toilet and the meter cupboard. The living room is spacious, and the kitchen is located at the front of the house. It comes equipped with a refrigerator, freezer, built-in dishwasher, 4-burner gas hob, extractor hood, and a combi microwave oven. French doors at the rear lead you into the northwest-facing back garden.

First Floor

The first floor features three bedrooms, all fitted with roller shutters. These rooms can also serve as home offices. On this floor, you'll also find the bathroom, which includes a toilet, shower, bathtub, and sink.

Second Floor

The second floor was completely renovated in 2022 and now offers two beautiful and spacious bedrooms. Both rooms feature large dormer windows with roller shutters and insect screens. A stylish, custom-made closet wall provides ample storage and a sleek finish.

Back Garden

The northwest-facing garden offers the perfect mix of sun and shade throughout the day. It is well maintained and low-maintenance, with plenty of space for dining, children playing, or just relaxing after a long day.

Life in Kudelstaart: Peace and Convenience Combined

This home is ideally located in a neighborhood known for its spacious layout, green surroundings, and ample parking. Nearby you’ll find playgrounds, primary schools, childcare facilities, and sports clubs.

Kudelstaart is a lively village situated on the beautiful Westeinderplassen, where you can enjoy water sports and recreation. The local shopping center is nearby and caters to all your daily needs, with a supermarket, bakery, butcher, and various restaurants and cafés.

Accessibility

Thanks to excellent public transport connections, you're just a short trip from the centers of Aalsmeer or even Amsterdam. By car, places like Amstelveen, the Amsterdamse Bos, Schiphol, Amsterdam, Hoofddorp, the A4, A5, A9, and the coast are all easily accessible.

This way, you can enjoy village tranquility with city conveniences close at hand.

Property Features:
* Year of construction: 2003/2004 (completed in 2004)
* Plot size: 128 m²
* Energy label A
* Living area: 132 m² (to be filled in)
* Intergas central heating boiler from 2015
* 5 bedrooms
* Fully renovated second floor (2022)
* Heat recovery ventilation system (WTW) from 2022
* Plenty of parking on the street
* Northwest-facing back garden
* Roller shutters on the first and second floors
* Delivery in consultation

Interested in this well-maintained family home?

Feel free to contact us for more information or to schedule a viewing at tel. 0297-322111.

We’d love to show you around!

Kenmerken