Beschrijving

Leuk tweekamerappartement op de eerste verdieping van een keurig appartementencomplex, op de grens van Amstelveen en Aalsmeer!

Dit appartementencomplex is in 2009 gebouwd en sindsdien met zorg onderhouden. Er is een lichte en ruime woonkamer met een ruime open keuken met inbouwapparatuur, een slaapkamer van bijna 13 m² groot en een moderne badkamer. Kortom een heerlijk appartement op een super centrale locatie.

Op loopafstand van het appartement is een bushalte te vinden met zeer goede verbindingen naar Amstelveen en Amsterdam. In de direct omgeving zijn winkels, scholen, sportaccommodaties en uitvalswegen te vinden.

Begane grond: centrale entree met de brievenbussen en videofoon, een eigen box voorzien van elektra.

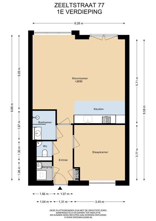
Eerste verdieping
Indeling: entree/hal, meterkast, hangend toilet met fonteintje, technische ruimte met de c.v.-ketel met aansluitingen voor wasmachine en droger. De badkamer is modern en heeft een inloopdouche en wastafelmeubel. De slaapkamer ligt aan de voorzijde van de woning. De woonkamer is ruim, licht en heeft een Frans balkon. De open keuken is voorzien van een vaatwasser, combi oven, gasstel met 4 pits gasfornuis, en een koel-/vriescombinatie.

Bijzonderheden:
- Leuk appartement op de grens van Aalsmeer en Amstelveen
- Box op de begane grond
- Gezonde en actieve VvE
- De maandelijkse servicekosten aan de VvE bedragen € 122,35
- Woonoppervlakte: circa 60 m²
- Bouwjaar: 2009
- Cv-ketel 2009
- Oplevering in onderling overleg

Kenmerken