Beschrijving

Zeer royale maisonnette in het gezellige centrum van Aalsmeer

Ben je op zoek naar een ruim en centraal gelegen appartement in Aalsmeer? Dan is Raadhuisplein 4 precies wat je zoekt! Deze sfeervolle maisonnette met maar liefst drie slaapkamers is de ideale woning voor starters of jonge gezinnen die willen wonen in het hart van het dorp.

Indeling
Bij binnenkomst op de begane grond tref je de centrale privé-opgang en de trap naar boven.

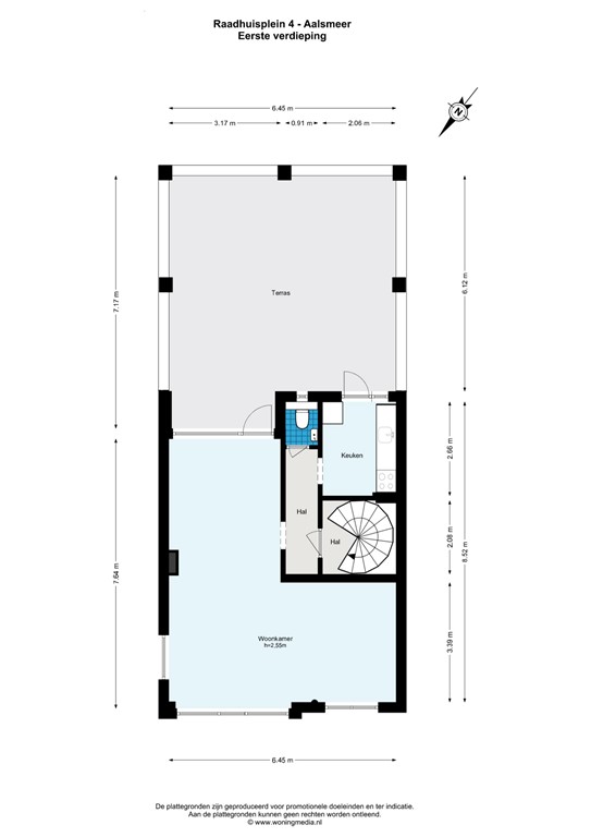
Op de eerste verdieping bevinden zich de gezellige woonkamer, een separate keuken, het toilet én het verrassend grote dakterras op het zuidoosten. Een heerlijke plek om van de zon te genieten!

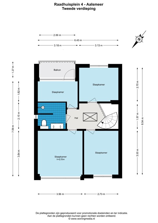
De tweede verdieping biedt drie ruime slaapkamers en een praktische wasruimte die toegang geeft tot een balkon. De moderne badkamer is voorzien van een inloopdouche, wastafelmeubel en een tweede toilet.

Via een vlizotrap bereik je de royale zolderverdieping, deels met stahoogte. Deze ruimte biedt volop mogelijkheden als opslagruimte of bijvoorbeeld een hobbykamer.

Ideale ligging
Wonen aan het Raadhuisplein betekent wonen met alle gemakken binnen handbereik. Winkels, restaurants, supermarkten en openbaar vervoer bevinden zich op loopafstand. Hier geniet je van de levendigheid van het centrum, terwijl je thuis komt in een rustige woonomgeving.

Bijzonderheden
* Woonoppervlakte ca. 110 m² (exclusief zolder)
* Energielabel F – met isolatie van de zolder kan dit verbeterd worden
* Servicekosten: ca. € 216,- per maand
* Voorschot stookkosten en water: ca. € 125,- per maand (afrekening via ISTA-meters)
* Snelle oplevering mogelijk
* Vaste projectnotaris: Buma, te Amsterdam

Interesse?
Ben je enthousiast geworden over deze woning? Neem dan snel contact op voor een bezichtiging via 0297-322111. Wie weet wordt Raadhuisplein 4 binnenkort jouw nieuwe thuis, midden in het gezellige centrum van Aalsmeer!

Kenmerken