Beschrijving

Ben je op zoek naar een fijne gezinswoning op een rustige locatie? In de geliefde woonwijk Hornmeer in Aalsmeer staat deze comfortabele tussenwoning aan de Meervalstraat te koop. Een ideale plek voor wie ruimte, licht en een prettige woonomgeving belangrijk vindt.

Met een perceel van 163m² en een woonoppervlakte van 118 m² biedt deze woning volop leefruimte. De zonnige achtertuin op het zuidwesten maakt het plaatje compleet: hier geniet je tot in de avond van de zon, of het nu gaat om ontspannen na een lange dag of gezellig samenzijn met familie en vrienden. Binnen tref je een lichte woonkamer en maar liefst vier slaapkamers, waardoor de woning uitermate geschikt is voor (grotere) gezinnen of thuiswerkers.

Aalsmeer staat bekend om haar waterrijke karakter en groene omgeving. In de directe nabijheid vind je diverse winkels, scholen, sportvoorzieningen en recreatiemogelijkheden, waaronder het Hornmeerpark en de Westeinderplassen met het surfeiland en het waterfront. Ook de bereikbaarheid is uitstekend: steden als Amstelveen en Amsterdam, evenals Schiphol, Hoofddorp en uitvalswegen zoals de A4, A5 en A9, zijn snel en eenvoudig te bereiken.

Indeling

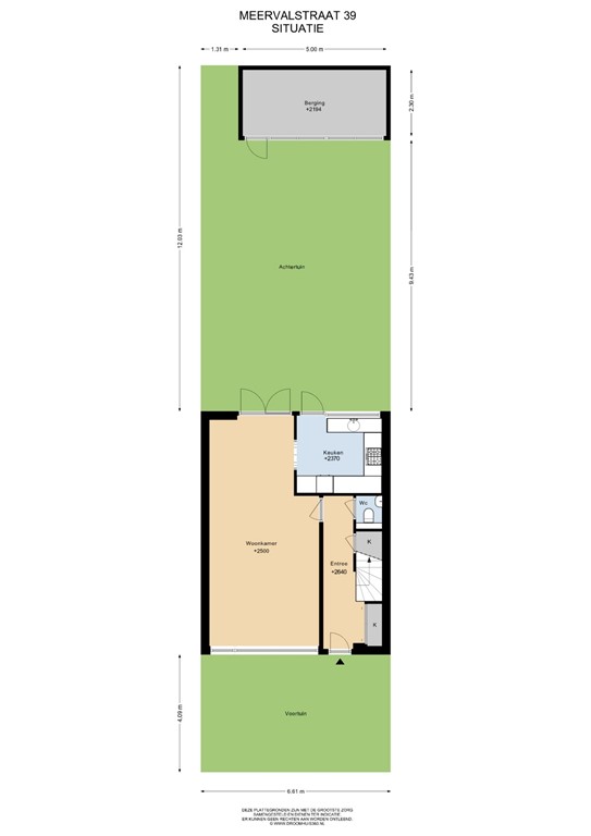
Begane grond
De entree geeft toegang tot een ruime hal met toiletruimte, trapopgang en praktische trapkast. De doorzonwoonkamer is dankzij de grote ramen aan zowel de voor- als achterzijde heerlijk licht. De open keuken is uitgerust met diverse inbouwapparatuur, waaronder een vaatwasser, gaskookplaat, koelkast, afzuigkap en oven. Zowel via de keuken als via de woonkamer bereik je de achtertuin. Deze is gunstig gelegen op het zuidwesten en beschikt over een vrijstaande berging en een achterom.

Eerste verdieping
De overloop biedt toegang tot drie goed bemeten slaapkamers en een verzorgde badkamer met douche, wastafelmeubel en toilet.

Tweede verdieping
Op zolder bevindt zich een vierde slaapkamer met dakkapel. Daarnaast is er een voorzolder met aansluitingen voor de wasmachine en droger, evenals de opstelplaats van de cv-ketel.

Bijzonderheden
* Woonoppervlakte circa 118 m²
* Perceeloppervlakte 163 m²
* Vier slaapkamers
* Energielabel C
* Volledig voorzien van dubbel glas en kunststof kozijnen
* Zonnige achtertuin op het zuidwesten
* Gelegen in de kindvriendelijke wijk Hornmeer
* Bouwjaar 1970
* Cv ketel Intergas 2006
* Oplevering in overleg

Nieuwsgierig geworden? Neem gerust contact met ons op via 0297-322111 voor meer informatie of het plannen van een bezichtiging. We laten je deze woning graag aan je zien!

Kenmerken