Beschrijving

Driekamerappartement met twee fijne balkons op de derde (en tevens hoogste) verdieping.

Instapklaar wonen op een toplocatie in Aalsmeer.
Op de derde verdieping van de Geraniumstraat ligt dit keurig onderhouden en sfeervolle driekamerappartement. De woning combineert comfort, licht en een uitstekende ligging en is daardoor ideaal voor wie zorgeloos wil wonen. 

Locatie
Het appartement is centraal gelegen, op loopafstand van de gezellige winkelstraat Ophelialaan, diverse horecagelegenheden en openbaar vervoer. Ook de Westeinderplassen, scholen en het levendige dorpscentrum van Aalsmeer bevinden zich op korte afstand.

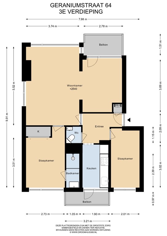
Indeling
De lichte woonkamer beschikt over een gezellig woon- en eetgedeelte en biedt toegang tot één van de balkons. Hier geniet je van de middag- en avondzon én een vrij uitzicht over de omgeving. Vanuit de woonkamer is tevens de ruime slaapkamer bereikbaar, met aangrenzende badkamer met douche en wastafelmeubel. 
Via de hal bereik je de tweede slaapkamer (voorzien van wasmachine- en drogeraansluiting), het toilet en de moderne keuken. De keuken is in 2020 is vernieuwd en is voorzien van diverse inbouwapparatuur en een inductiekookplaat. Vanuit de keuken heb je toegang tot het tweede balkon, een heerlijke plek om ’s ochtends in de zon te genieten van een kop koffie. 

Bijzonderheden
De woning is volledig van het gas af (geen eigen cv-ketel), uitgerust met kunststof kozijnen, dubbel glas en wordt voorzien van warm water middels een eigen elektrische doorstroomboiler. De verwarming loopt via blokverwarming.

Kortom: een netjes onderhouden en praktisch ingedeeld appartement op een fijne locatie, perfect voor starters of stellen die comfortabel willen wonen in Aalsmeer.

Bijzonderheden:
* Woonoppervlakte ca. 68m²
* Servicekosten: ca. €279,74 (incl. voorschot stookkosten á €70,-) 
* Energielabel: C
* 3-Fasen aangesloten (Inductie) 
* Volledig van het gas af (geen eigen cv-ketel, warm water via doorstroomboiler)
* Blokverwarming met Tado slimme thermostaatkranen
* Wasmachine- en droger aansluiting mooi weggewerkt in de slaapkamer (nu kantoor)
* De slaapkamers en de balkondeuren zijn voorzien van horren
* Berging op begane grond

Kenmerken