Beschrijving

Ruime eengezinswoning met zonnige achtertuin op het zuidwesten in Aalsmeer

Deze fijne eengezinswoning is gelegen aan de Dreef 48 in Aalsmeer, in een rustige en prettige woonwijk. De ligging is ideaal: winkels, openbaar vervoer, scholen en diverse sportgelegenheden bevinden zich allemaal in de directe omgeving. Een heerlijke plek voor wie comfortabel wil wonen met alle dagelijkse voorzieningen dichtbij.

Via de entree komt u binnen in de hal met toegang tot het toilet, de meterkast en de woonkamer. De woonkamer is heerlijk licht dankzij de grote raampartijen en staat in directe verbinding met de achtertuin middels een schuifpui. Hierdoor lopen binnen en buiten mooi in elkaar over en voelt de leefruimte extra ruim en open aan.

Aan de achterzijde van de woning bevindt zich de halfopen keuken. De keuken is praktisch ingedeeld en voorzien van een inductiekookplaat, oven, vaatwasser en koel- vriescombinatie. 

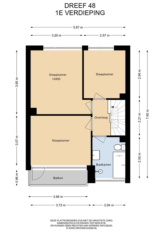
Op de eerste verdieping bevinden zich drie slaapkamers en de badkamer. De kamers zijn op verschillende manier in te delen zoals een kantoor, hobby en-of werkruimte. De badkamer is compleet uitgevoerd en beschikt over een apart ligbad, een aparte douche, een wastafelmeubel en een toilet. Een comfortabele en praktische ruimte waar u zowel snel kunt opfrissen als heerlijk kunt ontspannen.

De tweede verdieping biedt toegang tot de zolderverdieping, waar twee dakkapellen zorgen voor verrassend veel ruimte en licht. Deze verdieping is ideaal te gebruiken als extra slaapkamer, thuiskantoor of hobbyruimte.

De achtertuin is gelegen op het zonnige zuidwesten, waardoor u tot in de avond van de zon kunt genieten. Er is volop ruimte voor een gezellige zithoek, een lange eettafel of een fijne speelhoek voor kinderen. Achterin de tuin bevindt zich een stenen schuur, ideaal voor fietsen, tuinspullen of extra opslag.

De woning is grotendeels voorzien van kunststof kozijnen en dubbel glas. De verwarming vindt deels plaats via vloerverwarming en deels via radiatoren, wat zorgt voor een prettig wooncomfort.

Bijzonderheden:
Gelegen in een rustige wijk in Aalsmeer met alle voorzieningen dichtbij
Lichte woning door veel raampartijen
Achtertuin gelegen op het zuidwesten
Koken op inductie
Badkamer met apart bad en aparte douche
Twee dakkapellen op zolder
Grotendeels kunststof kozijnen
Dubbel glas aanwezig
Bouwjaar: 1971
Perceeloppervlakte 152m²

Kenmerken